Left Right Up Down Zoom Back

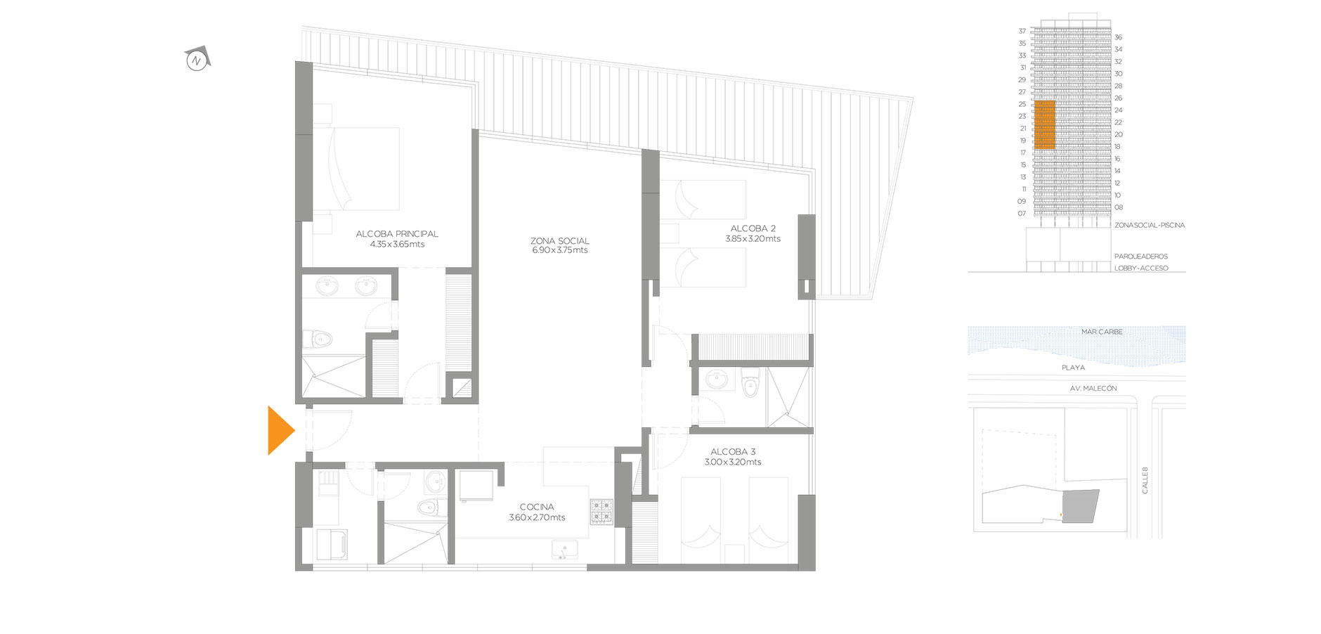
APARTAMENTO TIPO 1C

Descargar PDF