Left Right Up Down Zoom Back

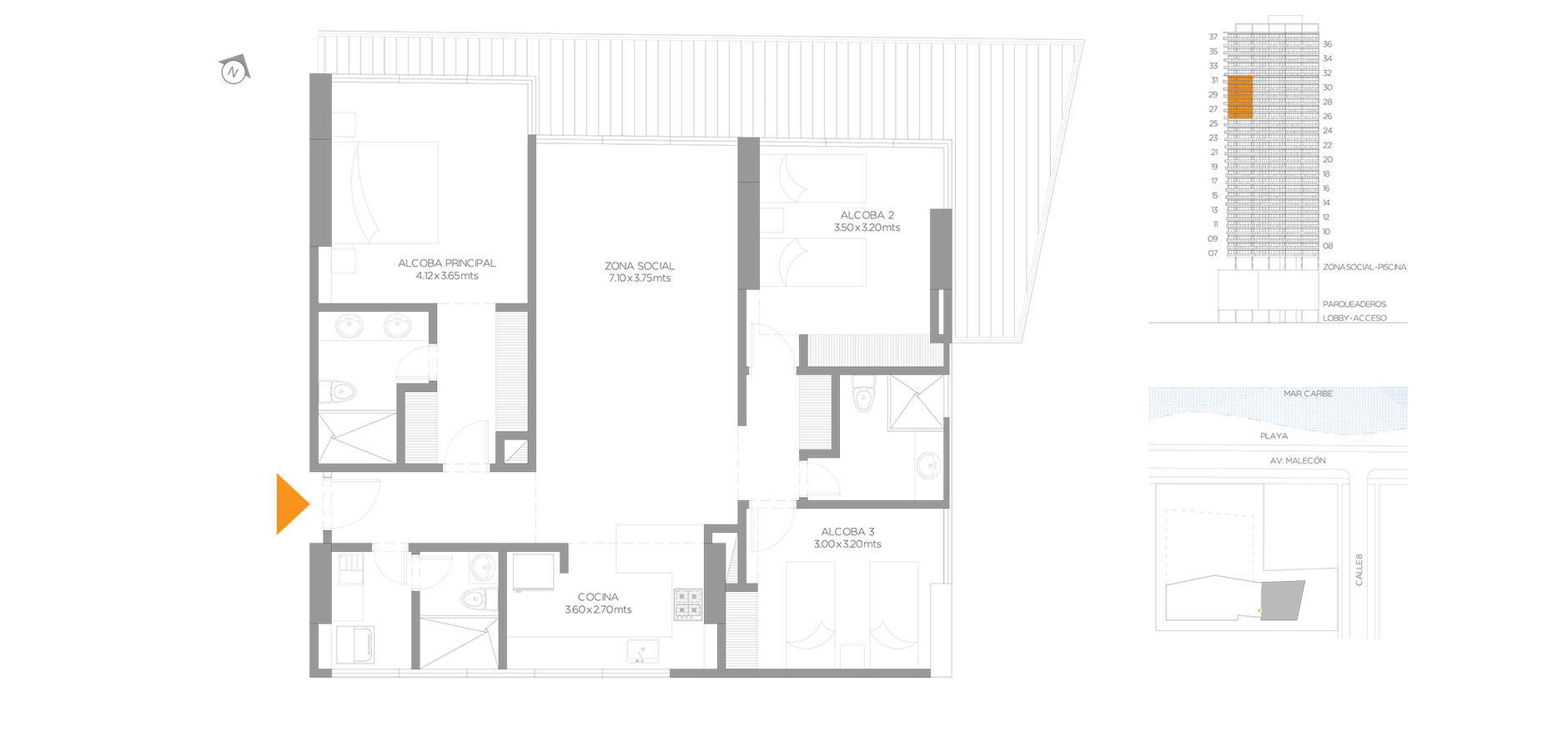
APARTAMENTO TIPO 1B

Descargar PDF