Left Right Up Down Zoom Back

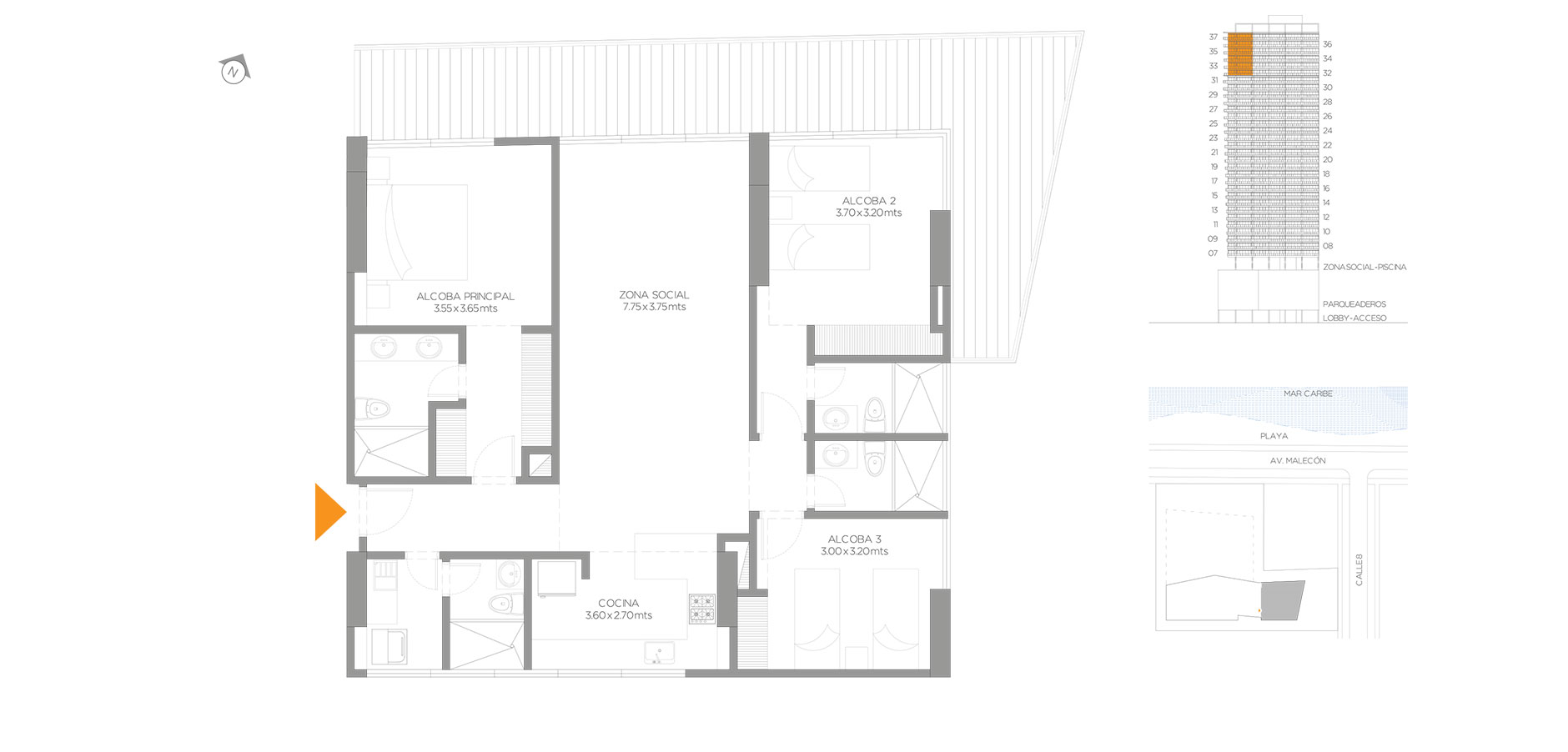
APARTAMENTO TIPO 1A

Descargar PDF